ROOTED IN HERITAGE
DESIGNED FOR TODAY
MOTOR
CONRAD C144S #3
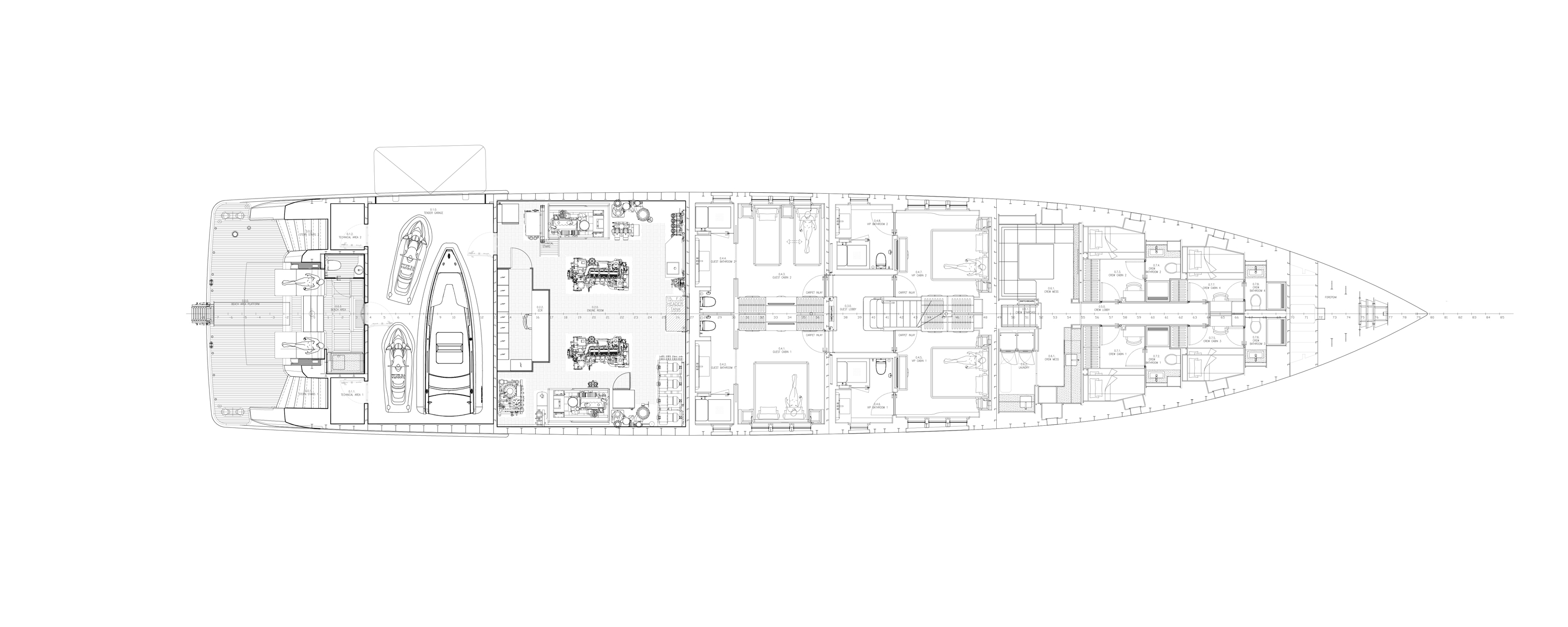
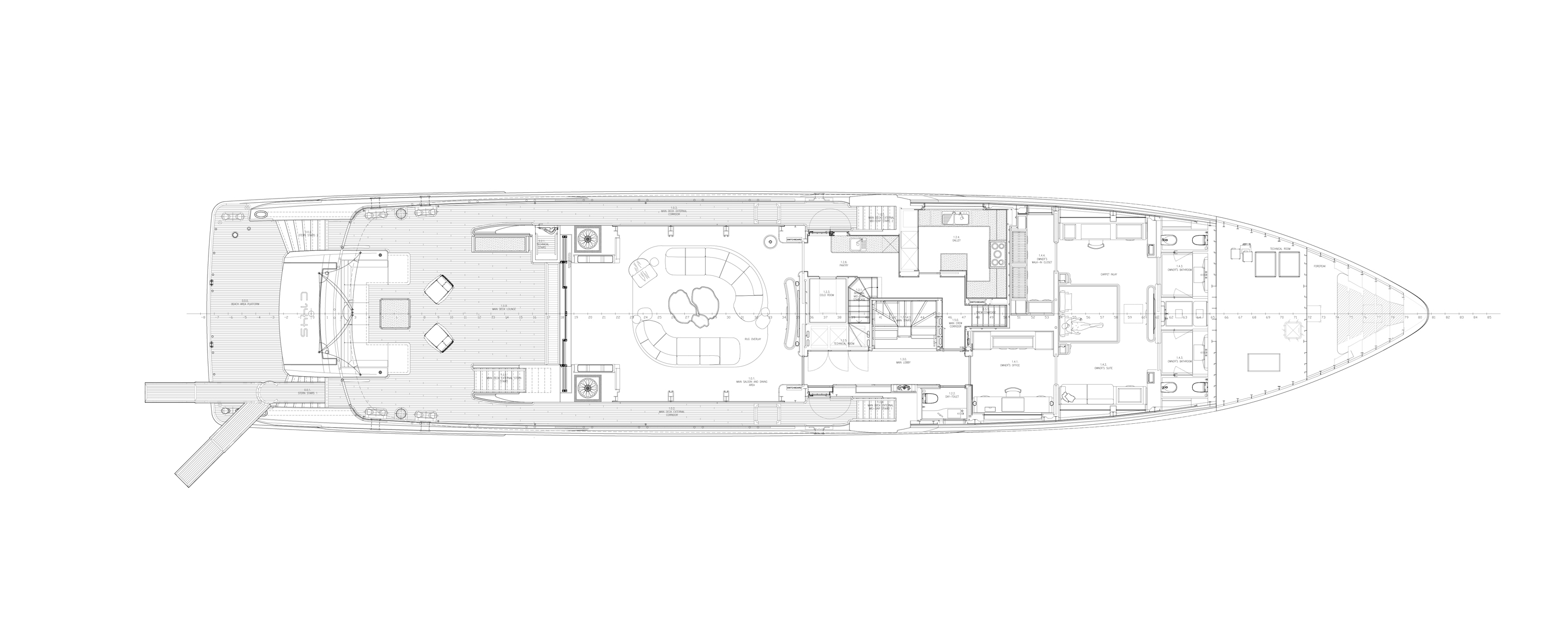
Following in the wake of her acclaimed sisterships ACE and Extra Time, Moonlight was commissioned by a discerning owner introduced by leading superyacht brokerage Y.CO. The project brought together several of the industry’s most respected names: Reymond Langton Design crafted her sleek exterior profile, Nauta created her refined interiors and generous exterior social areas, and Diana Yacht Design developed the naval architecture, ensuring outstanding performance and seaworthiness. On board, Project Moonlight accommodates up to 10 guests in a flexible five-stateroom layout, supported by comfortable quarters for a professional crew of nine. Designed for both relaxation and entertainment, the yacht features an expansive beach club, multiple lounges, pool with panoramic views, two alfresco dining areas, two fully equipped bars, and a dedicated open-air cinema for memorable evenings under the stars. A spacious garage houses a 6.3-metre tender, two Jet Skis, and a selection of Seabobs. Powered by twin Caterpillar engines, Moonlight reaches a top speed of 14,3 knots and cruises efficiently at 11 knots. With an impressive transoceanic range of 4,500 nautical miles at 10 knots, she is ideally suited for long-range exploration. The yacht has also been engineered to fully comply with all regulatory requirements for vessels under 500 GT. The C144s series represents Conrad Shipyard’s first semi-custom line, developed in response to strong demand from clients seeking the ideal balance between individuality and a proven platform. Since its introduction, the series has set new benchmarks in its category,combining timeless design with exceptional craftsmanship and advanced engineering. With the delivery of Moonlight, Conrad Shipyard further strengthens its position as a premier builder of bespoke luxury superyachts. The yacht departed Poland in mid-January 2026.
.
Exterior Design Reymond Langton
Naval Architecture Diana Yacht Design
Interior Design Nauta Yachts Design
Year 2025
Type Full Displacement Motor Yacht
Construction Steel Hull / Aluminum Superstructure
Class LR + 100A1 SSC Yacht Mono G6, [+] LMC, UMS SCM
SPECIFICATIONS
| Overall Length | 44.27 m (145 ft. 3 in.) |
| Waterline Length | 42.98 m (141 ft.) |
| Max Beam | 8.90 m (29 ft. 2 in.) |
| Draft | 2.43 m (8 ft.) |
| Displacement | 460 t |
| Gross Tonnage | 497 GT |
| Cruising/Max Speed | 11/14,3 knots |
| Range | 4500 NM @ 10 knots |
| Engine | 2x CAT C18 ACERT 599kW @ 2100rpm |
| Gearbox | 2x ZF W2450 |
| Propulsion | 2x Rubber Design Oil-Cooled Shaft Lines |
| Generator | 2x CAT C7.1 118 kW |
| Stabilization System | Naiad E525 Electric Zero Speed |
| Bow Thruster | CMC Dualis Electra 110 kW |
| Fuel Tanks | 51270 l (13544 gal.) |
| Fresh water | 11750 l (3104 gal.) |
| Sewage | 11350 l (2998 gal.) |
| Used Lube Oil | 1097 l (290 gal.) |
| Clean Lube Oil | 1081 l (286 gal.) |
| Deck Equipment | Maxwell |
| Hydraulic System | Feebe |
| Gangway | Feebe |
| Sliding Tender Crane | Feebe |
| Air-Conditioning | Condaria |
| Steering Gear | Jastram |
| Sewage Treatment | Hamann AG |
| Navigation & Communication | Furuno / Böning |
| Paint System | AWLGrip |
| Watermaker | Idromar |
| Shore Power Converter | ASEA |
General Arrangement
REQUEST
Thank you for your kind interest in Conrad Shipyard. Please use the form below for any general enquiries. We will do our utmost to get back to you within 4 working days.